新築一戸建て 出雲市大津町
■2026年5月完成予定の物件!
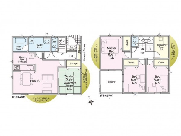
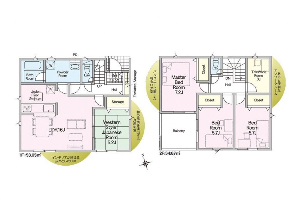
■オール電化住宅!環境にも経済的にも優しい住まい!
■敷地内に3台駐車可能!
■収納充実!各居室に収納あり!2階にはテレワーク専用部屋あり!
■LDKは南向き。日当たり良好で明るい室内。
■トイレ2か所!感染症対策にもおすすめの間取り!
支払例
※山陰合同銀行/借入金2,780万円、返済期間40年、金利0.800%変動金利)の場合
※審査により金利は変わる可能性があります。
物件概要
- 交通
-
一畑電気鉄道松江線 大津町駅 まで 徒歩7分
- 接道状況
- 北側 私道6m 間口約9.9m
- 土地面積
- 公簿 160.20㎡ (48.46坪)
- 建物面積
- 107.72㎡ (32.58坪)
- 築年数
- 2026年 (令和8) 5月
- 建ぺい率
- 60%
- 容積率
- 200%
- 土地権利
- 所有権
- 構造および階数
- 木造 地上2階建
- 小学校区
- 大津
- 中学校区
- 第一
- 私道負担
- あり (364.00㎡) 私道負担割合1/12
- 地目
- 宅地
- 現況
- 建築中
- 引渡時期
- 予定 2026年5月
- 駐車場
- 有
- 上水道
- 公共
- 下水道
- 公共
- ガス
- 都市計画
- 非線引区域
- 用途地域
- 1種住居
- 建築確認番号
- 第R07SHC121505号
- 設備・条件
- システムキッチン、IHクッキングヒーター、オール電化、シャンプードレッサー、洗浄便座、複層ガラス、モニタ付インターホン、駐車場3台分、床下収納、トイレ2箇所
- 備考
- 取引態様
- 仲介





