新築一戸建て 出雲市斐川町併川字千家
西野小校区に人気の間取りが登場!🌟
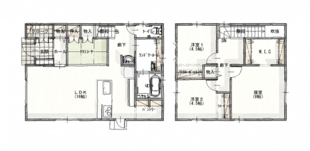
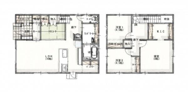
開放感と使いやすさが融合した、スタイリッシュなペニンシュラキッチン✨
客間やくつろぎスペースとしても使えるリビング続きのタタミコーナー🎶
3帖のランドリールームで室内干しも可能!
アウトドア用品や雨具、掃除用品やベビーカーなどがしまえる土間収納付き✨
各部屋に収納スペース完備&2帖のウォークインクローゼットで収納力バツグン!
安心のオール電化仕様!IHクッキングヒーターでお掃除がらくちん♪
駐車場コンクリートなどの外構工事も販売価格に含まれます!
支払例
※山陰合同銀行/借入金2,656万円、返済期間40年、金利0.800%変動金利)の場合
※審査により金利は変わる可能性があります。
物件概要
- 交通
-
JR山陰本線 直江駅 まで 徒歩25分
- 接道状況
- 公道 間口約6m
- 土地面積
- 159.81㎡ (48.34坪)
- 建物面積
- 102.00㎡ (30.85坪)
- 築年数
- 2025年 (令和7) 6月
- 建ぺい率
- 60%
- 容積率
- 200%
- 土地権利
- 所有権
- 構造および階数
- 木造 地上2階建
- 小学校区
- 西野
- 中学校区
- 斐川西
- 私道負担
- 地目
- 宅地
- 現況
- 空
- 引渡時期
- 相談
- 駐車場
- 有 普通3台
- 上水道
- 公共
- 下水道
- ガス
- 都市計画
- 非線引区域
- 用途地域
- 工専
- 設備・条件
- システムキッチン、IHクッキングヒーター、オール電化、洗浄便座、追い焚き、モニタ付インターホン
- 備考
- 取引態様
- 仲介





